Майнинг и стейкинг Институциональное принятие

Как правильно добавить встроенные светильники в план потолка с отражением

Майнинг и стейкинг Институциональное принятие
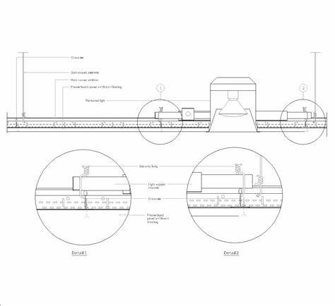
Adding Recessed lights to a reflected ceiling plan

Подробное руководство по включению встроенного освещения в отраженный потолочный план, раскрывающее основные принципы проектирования, выбор светильников и советы по монтажу для создания гармоничного и функционального интерьера. .

Встроенные светильники продолжают набирать популярность благодаря своей возможности органично вписываться в интерьер и создавать равномерное освещение без визуального перегруза. Для архитекторов, дизайнеров интерьера и строителей крайне важно правильно интегрировать такие светильники в рефлекторный потолочный план, чтобы обеспечить не только функциональность, но и эстетическую привлекательность помещения. Рассмотрим основные аспекты и тонкости, которые необходимо учитывать при добавлении встроенного освещения в отраженный потолок. Отраженный потолок, или отраженный потолочный план - это схема, демонстрирующая расположение осветительных приборов, вентиляционных элементов, пожарной сигнализации и других технических устройств на потолке, отражаемом в плоскости потолка. Это инструмент визуализации и планирования, который помогает понятнее представить, где именно будут расположены все элементы освещения и технического оснащения помещения.

Когда речь идет о встроенных светильниках, главная задача заключается в том, чтобы правильно определить их расположение с учетом архитектурных особенностей, размеров помещения и целей освещения. Встроенные светильники могут выступать как основным источником света, так и дополнительным элементом для выделения зон или создания атмосферы. Первым шагом является анализ пространства и выявление функциональных зон, которые требуют освещения. Кухня, гостиная, спальня, офис или коридор - каждый из этих вариантов предъявляет свои требования к световому оформлению. Следует обратить внимание, что встроенные светильники скрыты в потолочной конструкции, поэтому заранее важно предусмотреть их количество и размещение так, чтобы обеспечить комфортное распределение света и избежать теней или ослеплений.

Выбор типа и размера светильников зависит от конструкции потолка и слоев отделочных материалов. Потолки с подвесными или гипсокартонными системами позволяют использовать разные виды встроенных светильников - от точечных ламп до светодиодных панелей. Важно учитывать возможно ли сделать вырез в потолке под устройства, а также возможность размещения трансформаторов и проводки без нарушения инженерных коммуникаций. Правильно разработанный отраженный потолочный план с указанием встроенных светильников помогает координировать работу различных специалистов: инженеров по электроснабжению, монтажников, дизайнеров. В проекте должно быть четко обозначено не только место установки светильников, но и тип светильников, характеристики мощности, тип ламп и методы их включения.

 

Современные технологии предлагают широкие возможности для выбора встроенного освещения. Светодиодные светильники являются предпочтительным выбором благодаря их энергоэффективности, долговечности и разнообразию форматов. Они позволяют создавать разное цветовое освещение и регулировать яркость, что очень полезно для создания разных настроек в одном помещении. Необходимо уделять внимание вопросам безопасности при проектировании и монтаже. Электропроводка должна быть выполнена по правилам, а используемые лампы - соответствовать нормам по тепловыделению.

 

Встроенные светильники должны иметь сертификаты качества и быть предназначены для конкретных условий эксплуатации, например, влагозащищенные устройства для использования в ванных комнатах. Освещение влияет не только на визуальное восприятие пространства, но и на настроение, производительность и общее самочувствие людей. Встроенные светильники дают возможность создать плавное и равномерное освещение, которое способствует расслаблению и комфорту. При этом важно подумать о регулировке и автоматизации. Добавление диммеров и систем управления позволяет менять интенсивность света в зависимости от времени суток и задач.

 

Еще одним аспектом при добавлении встроенных светильников в отраженный потолочный план становится их связь с другими осветительными приборами. Комбинация встроенного освещения с подвесными люстрами, торшерами и настенными светильниками может обеспечить разнообразный и сложный световой дизайн. Такой подход позволяет выделить акценты на объектах интерьера, как картины или мебель, а также улучшить общую атмосферу. Не стоит забывать и про декоративный аспект. Встроенные светильники бывают разной формы и цвета, что позволяет использовать их как элемент дизайна.

Можно интегрировать цветовые рамки, управляющие элементы для изменения цвета светового потока, создавать зонирование пространства без дополнительных перегородок. При составлении отраженного потолочного плана с учетом встроенных светильников особенно полезно использовать современные программные решения и 3D-моделирование. Эти инструменты помогут визуализировать, как будет выглядеть свет, где появляются тени или блики, и выявить возможные ошибки еще на этапе проектирования, существенно экономя время и средства. Таким образом, добавление встроенных светильников в отраженный потолочный план - это комплексный процесс, который требует внимания к деталям и правильного планирования. В результате качественного проектирования и монтажа можно получить функциональное, комфортное и эстетически привлекательное освещение, которое подчеркнет достоинства интерьера и улучшит качество жизни в помещении.

.

Автоматическая торговля на криптовалютных биржах

Далее
Recessed light DWG CAD Detail Free Download - dwglab.com
Среда, 07 Январь 2026 Подробности проектирования встраиваемого света: DWG CAD детали для эффективного монтажа потолков

Глубокое изучение особенностей проектирования и монтажа встроенного освещения с использованием DWG CAD деталей. В статье раскрываются технические аспекты, преимущества использования файлов DWG, а также советы по интеграции светильников в подвесные и гипсокартонные потолочные системы.

How to add Lighting fixture in AutoCAD - YouTube
Среда, 07 Январь 2026 Как добавить светильник в AutoCAD: подробное руководство для начинающих и профессионалов

Пошаговое руководство по добавлению светильников в проекты AutoCAD с учетом особенностей программы. Советы и лучшие практики для оптимизации рабочего процесса и повышения качества визуализации.

Solved: Scheduling Recessed Lighting - Autodesk Community - AutoCAD
Среда, 07 Январь 2026 Оптимизация планирования встроенного освещения в AutoCAD Architecture: лучшие практики и советы

Актуальные стратегии и практические рекомендации по эффективному планированию и учёту встроенных светильников в Autodesk AutoCAD Architecture для архитекторов и инженеров. .

Recessed Led In Floor In DWG (95.60 KB) | CAD library
Среда, 07 Январь 2026 Светодиодные встраиваемые светильники в пол: инновации в освещении и проектировании

Обзор светодиодных встраиваемых светильников в пол, их технические особенности, применение в архитектуре и дизайне, а также преимущества использования DWG файлов для проектирования и монтажа. .

Recessed Ceiling Lights - Free CAD Drawings
Среда, 07 Январь 2026 Встраиваемые потолочные светильники: Бесплатные CAD-чертежи для профессионалов и любителей

Подробное руководство по встраиваемым потолочным светильникам с доступом к бесплатным CAD-чертежам для планирования и проектирования освещения в интерьере и экстерьере, раскрывающее все тонкости выбора, установки и дизайна. .

Recessed light design in AutoCAD 2D drawing, dwg file, CAD file - Cadbull
Среда, 07 Январь 2026 Проектирование встроенного освещения в AutoCAD: эффективные решения и преимущества 2D чертежей

Подробное руководство по созданию и использованию дизайна встроенного освещения в AutoCAD с помощью 2D чертежей, dwg и CAD-файлов. Узнайте о преимуществах recessed lighting для интерьеров, особенностях работы в AutoCAD и тонкостях проектирования световых решений для жилых и коммерческих помещений.

Recessed luminaire in AutoCAD | Download CAD free (79.72 KB) - Bibliocad
Среда, 07 Январь 2026 Встраиваемые светильники в AutoCAD: подробный обзор и бесплатная CAD-заготовка

Детальный обзор особенностей встраиваемых светильников с акцентом на их проектирование в AutoCAD и возможность скачать бесплатный DWG-файл для архитектурно-инженерных проектов. .